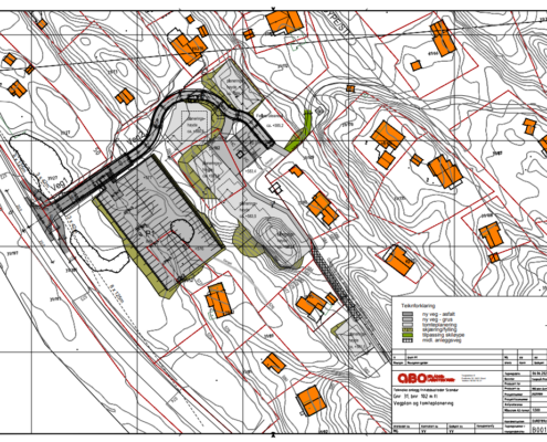
Scandur Panorama
Velkommen til Scandur Panorama, her finner du åtte hytter, en duohytte og fire leiligheter! 
Ledige enheter:
D1: LEDIG
D2: LEDIG
L1: LEDIG
L2: LEDIG
L3: LEDIG
L4: LEDIG
H1: LEDIG
H2: LEDIG
H3: LEDIG
H4: LEDIG
H5: LEDIG
H6: LEDIG
H7: LEDIG





